Трехкомнатная квартира 60,22 м2 по ул. Каширское шоссе 1 за 19906880 руб.

Трехкомнатная квартира по ул. Каширское шоссе, 1 в Москве
Цена 19 906 880 р. (330 569 р./м2)
Подать заявку на ипотеку
Район Нагатино-Садовники
Адрес Каширское шоссе, 1
Этаж 8/32
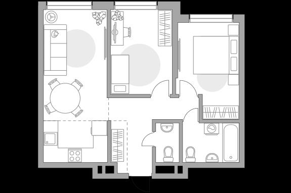
Площадь общая 60,22 м2, жилая 37,87 м2, кухни 5,85 м2
Кол-во комнат Трехкомнатная
Продается 3-комн. квартира, площадью 60.22 м2 в монолитной новостройке в 4 мин. транспортом от м. Верхние котлы, район города - Нагатино-Садовники. Возможен вариант покупки с использованием ипотечных средств. Жилая площадь 37.87 м2, кухня 5.85 м2. Площадь комнат: 15.15/11.51/11.21 м2, квартира без отделки, окна выходят на улицу. Квартира располагается на 8 этаже 32-этажного дома в ЖК BeLuck Коломенское. Застройщик - ГК Гранель, сдача дома - II квартал 2027 года, закрытая территория. Подземная парковка. Обеспечение безопасности: видеонаблюдение. Инфраструктура: детские площадки, спортивные площадки, места для отдыха, коммерческие объекты, офисы. «BeLuck Коломенское» - это жизнь в окружении парков и набережных, всего в двух станциях метро от Садового кольца. Современный подход к проектированию, широкий выбор планировочных решений, приватная благоустроенная территория - комплекс вобрал в себя все самое необходимое для комфортной жизни. С верхних этажей вам откроются впечатляющие виды на город и Москву-реку. Разновысотные здания придают динамику архитектуре и выделяют жилой комплекс среди другой застройки. В концепции проекта используются вентилируемые фасады с металлическими панелями и декоративной штукатуркой. Каждая секция имеет свой характер и цветовое решение. Покупателям предлагаются лоты с увеличенным остеклением и несколькими видами балконов. ЖК «BeLuck Коломенское» возводится на юге Москвы, рядом с Каширским шоссе. Аккредитованные банки: Газпромбанк, МТС Банк, Металлинвестбанк, Сбербанк, Россельхозбанк, Банк ДОМ. РФ, Промсвязьбанк, Абсолют Банк, Уралсиб, ВТБ, Альфа Банк, РНКБ, ТрансКапиталБанк, Банк «Санкт-Петербург, Московский Кредитный Банк, Совкомбанк Позвоните и узнайте условия покупки прямо сейчас!
Описание дома
Этажность дома 32
Объявление № 22395496
Дата подачи:
30 мая 2025 г. 7:06
Дата обновления:
30 мая 2025 г. 4:00
Просмотров 16 Хотите продать быстрее?

Продавец
Отдел продаж
Показать номер телефона
Пожаловаться
Комментарии:
Добавить